| 材料 |
?????? 介質溫度℃ |
材料 |
介質溫度℃ |
| 氯化聚氯乙烯(PVC-C) |
-20℃~+95℃ |
聚氯乙烯(PVC-U) |
-5℃~+45℃ |
| 增強聚丙烯(FRPP) |
-20℃~+120℃ |
均聚聚丙烯(PPH) |
-20℃~+110℃ |
| 聚偏二氟乙烯(PVDF) |
40℃~+150℃ |
|
|
1.材料的結晶度高
由單一聚丙烯單體聚合而成,分子鏈中不含乙烯單體;分子鏈的整規度高,長久的使用壽命;
2.耐腐蝕性能好
可在一定范圍內承受PH值范圍在1-14的高濃度酸和堿的腐蝕;
3.耐熱保溫節能
適用的溫度范圍從-20℃到110℃;導熱系數小,具有較好的保溫性能;
4.可靠的連接性能
該產品熱熔接口的強度高于管材本體,接縫不會由于土壤移動或載荷作用而斷開;
5.良好的施工性能
該產品質輕,焊接工藝簡單,施工方便,工程綜合造價低,能滿足復雜的工藝管道;PPH管道系統廣泛應用于電鍍、蝕刻、化工、制藥、污水處理、環境工程等行業。

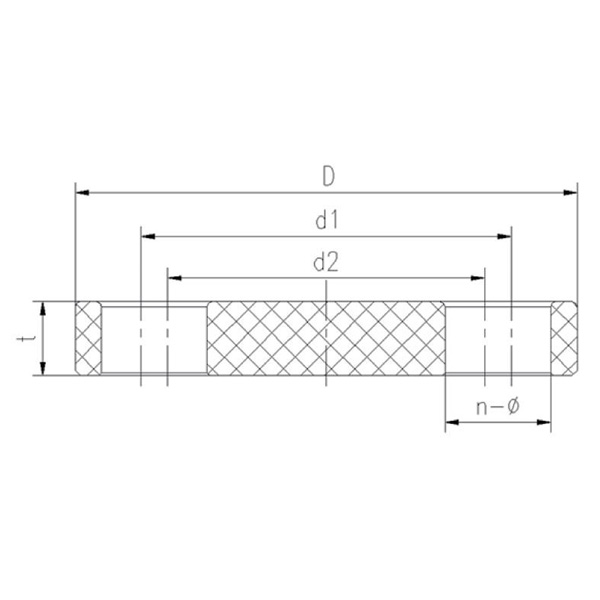
公稱直徑 DN |
D |
d1 |
d2 |
t |
n-Φ |
| 15? |
92.5? |
68.5? |
59? |
13? |
4-Φ14.5X19.5 |
| 20? |
103? |
73.5? |
69? |
15.5? |
4-Φ14.5X17 |
| 25? |
123? |
87.5? |
77? |
17.5? |
4-Φ14.5X20 |
| 32? |
136.5? |
97.5? |
87? |
18.5? |
4-Φ17.5X23 |
| 40? |
147? |
110.5? |
96? |
18? |
4-Φ17.5X24.5 |
| 50? |
161? |
125? |
117? |
18.5? |
4-Φ17.5X21.5 |
| 65? |
180.5? |
145.5? |
136? |
19? |
4-Φ17X22 |
| 80? |
195.5? |
159? |
146.5? |
18.5? |
8-Φ17X23.5 |
| 100? |
222.5? |
190? |
170.5? |
20.5? |
8-17.5X22 |
| 125? |
249? |
214? |
204.5? |
21? |
8-Φ17.5X22.5 |
| 150? |
280? |
240.5? |
234.5? |
22.5? |
8-Φ21.5X24.5 |
| 200(PN10) |
342? |
299? |
287? |
28? |
8-Φ23X29 |
| 200(PN16) |
335? |
296? |
28? |
12-Φ22 |
| 250? |
398.5? |
369? |
350? |
32? |
12-Φ23X32.5 |
| 300? |
437? |
400? |
38.5? |
12-Φ23 |
| 350? |
495.5? |
460? |
38.5? |
16-Φ23 |
| 400? |
559.5? |
515? |
38.5? |
16-Φ27 |
| 450? |
613.5? |
565? |
36.5? |
20-Φ26 |
| 500? |
657.5? |
620? |
38.5? |
20-Φ27 |
| 600? |
785? |
740? |
720? |
48.5? |
20-Φ30X40 |