1. 泵經長途運輸到達生產場地,安裝前應開箱檢驗,泵機零部件是否完好無損,緊固件如有松動,應重新緊固,檢查泵軸與電機軸的同心度,如有松動應予校正。
2. 泵體全部為 PVDF、FRPP 樹脂注塑成形,輸出管路上應有支撐架或吊架,不能全靠法蘭承受壓力,以防變形損壞;進口管路要盡量減少管路水損失,90°彎頭不應超過兩個。FP、FV 型離心泵應在吸入管前端裝上底閥,以保證泵在啟動前泵體內充滿液體;吸入管口或底閥進口應裝濾網,或在進口處裝一個過濾器,以防止雜物吸入泵體,保證泵能正常運轉。
3. 泵體連接點螺栓要均勻擰緊,進出管口連接嚴密,不能漏氣,否則會影響抽真空,吸不出液體,或在造成流量、揚程不足等弊端。
| 材料 |
?????? 介質溫度℃ |
材料 |
介質溫度℃ |
| 氯化聚氯乙烯(PVC-C) |
-20℃~+95℃ |
聚氯乙烯(PVC-U) |
-5℃~+45℃ |
| 增強聚丙烯(FRPP) |
-20℃~+120℃ |
均聚聚丙烯(PPH) |
-20℃~+110℃ |
| 聚偏二氟乙烯(PVDF) |
40℃~+150℃ |
|
|
?

直聯式自吸泵裝配明細圖
| 件號 |
名稱 |
材質 |
| 1 |
進口法蘭 |
FRPP,PVDF |
| 2 |
密封圈 |
EPDM,FPM |
| 3 |
密封圈 |
EPDM,FPM |
| 4 |
出口法蘭 |
FRPP,PVDF |
| 5 |
注液蓋 |
FRPP,PVDF |
| 6 |
密封膠片 |
EPDM,FPM |
| 7 |
密封圈 |
EPDM,FPM |
| 8 |
冷卻蓋 |
FRPP,PVDF |
| 9 |
冷卻水嘴 |
鋼 |
| 10 |
油孔塞 |
FRPP |
| 11 |
連接軸 |
鋼 |
| 12 |
連軸器 |
鑄鐵 |
| 13 |
銘牌 |
鋁 |
| 14 |
支架 |
FRPP/鑄鐵PVDF/鑄鐵 |
| 15 |
雙頭螺柱 |
鋼、不銹鋼 |
| 16 |
機械密封動環 |
碳化硅 |
| 17 |
機械密封靜環 |
碳化硅 |
| 18 |
后泵蓋 |
FRPP,PVDF |
| 19 |
密封圈 |
EPDM,FPM |
| 20 |
葉輪 |
FRPP/鋼 PVDF鋼 |
| 21 |
自吸泵泵體 |
FRPP,PVDF |
| 22 |
拍門 |
EPDM,FPM |
| 23 |
前泵蓋 |
FRPP,PVDF |

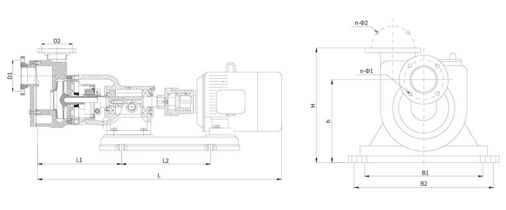
安裝尺寸? ? ? ? ? ? ? ? ? ? ? ? ? ? ? ? ? ? ? ? ? ? ? ? ? ? ? 單位 :mm
|
型號/尺寸
|
安裝尺寸
|
進口法蘭
|
出口法蘭
|
|
L
|
LI
|
L2
|
H
|
h
|
B1
|
B2
|
D1(Φ)
|
n-Φ1
|
D2
|
n-Φ2
|
|
40F
|
p |
(Z)-25 |
800
|
280
|
400
|
360
|
260
|
240
|
335
|
110
|
4-Φ18
|
100
|
4-Φ18
|
| v |
|
50F
|
p |
(Z)-28 |
900
|
280
|
400
|
360
|
260
|
240
|
335
|
125
|
4-Φ18
|
110
|
4-Φ18
|
| v |
|
80F
|
p |
(Z)-30 |
1000
|
575 |
435
|
400
|
300
|
250
|
340
|
160
|
8-Φ18
|
145
|
4-Φ18
|
| v |
|
80F
|
p |
(Z)-32 |
1000
|
575
|
435
|
400
|
300
|
250
|
250340
|
160
|
8-Φ18
|
145
|
4-Φ18
|
| v |