| 材料 |
?????? 介質溫度℃ |
材料 |
介質溫度℃ |
| 氯化聚氯乙烯(PVC-C) |
-20℃~+95℃ |
聚氯乙烯(PVC-U) |
-5℃~+45℃ |
| 增強聚丙烯(FRPP) |
-20℃~+120℃ |
均聚聚丙烯(PPH) |
-20℃~+110℃ |
| 聚偏二氟乙烯(PVDF) |
40℃~+150℃ |
|
|
1.輕便:PVC-U 材料的比重只有鑄鐵的 1/10,運輸,安裝簡易,降低成本;
2.抗化學性優越:PVC-U 具有優良的抗酸堿性能,除接近飽和點強酸堿外;
3.耐用:抗候性優良,也不能被細菌及菌類所腐化;
4.不導電:PVC-U 材料不能導電,也不受電解,電流的腐蝕,應此無需二次加工。不能燃燒,也不助燃,沒有消防顧慮;
5.阻力小,流率高:內壁光滑,流體流動性損耗小,加以污垢不易附著在平滑管壁,保養較為簡易,保養費用較低;
6.安裝簡易,成本低廉:切割及聯接都很簡易,使用 PVC 膠水聯接實踐證明安全可靠,操作簡便,成本低廉。

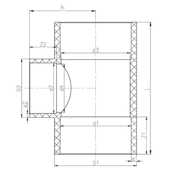
| 公稱直徑DN |
D1 |
D2 |
d1 |
d2 |
d3 |
d4 |
?L |
h |
Z1 |
Z2 |
e1 |
e2 |
| 20*15 |
31.5? |
26? |
25? |
20? |
20? |
16? |
65.5? |
29.5? |
19? |
19? |
3.2? |
3? |
| 25*15 |
41? |
27? |
32? |
20? |
27? |
16? |
80.5? |
33.5? |
22? |
19? |
4.5? |
3.5? |
| 25*20 |
41? |
31.5? |
32? |
25? |
27? |
20? |
80.5? |
36.5? |
22? |
19? |
4.5? |
3.2? |
| 32*15 |
50.5? |
26? |
40? |
20? |
34? |
16? |
96.5? |
37.25? |
26? |
16.5? |
5.2? |
3? |
| 32*20 |
50.5? |
31.5? |
40? |
25? |
34? |
20? |
96.5? |
40.25? |
26? |
19? |
5.2? |
3.2? |
| 32*25 |
50.5? |
41? |
40? |
32? |
34? |
27? |
96.5? |
43.65? |
26? |
22? |
5.2? |
4.5? |
| 40*15 |
63.5? |
27? |
50? |
20? |
44? |
16? |
116? |
42.85? |
31? |
16? |
6.7? |
3.5? |
| 40*20 |
63.5? |
33? |
50? |
25? |
44? |
20? |
116? |
45.75? |
31? |
19? |
6.7? |
4? |
| 40*25 |
63.5? |
43? |
50? |
32? |
44? |
27? |
116? |
48.65? |
31? |
22? |
6.7? |
5.5? |
| 40*32 |
63.5? |
51? |
50? |
40? |
44? |
34? |
116? |
52.45? |
31? |
26? |
6.7? |
5.3? |
| 50*20 |
79? |
33? |
63? |
25? |
55? |
20? |
143? |
52? |
38? |
19? |
8? |
3.8? |
| 50*25 |
79? |
41? |
63? |
32? |
55? |
27? |
143? |
55.3? |
38? |
22? |
8? |
4.5? |
| 50*32 |
79? |
50.5? |
63? |
40? |
55? |
34? |
143? |
60? |
38? |
26? |
8? |
5.3? |
| 50*40 |
79? |
63.5? |
63? |
50? |
55? |
44? |
143? |
63.5? |
38? |
31? |
8? |
6.6? |
| 65*25 |
94.5? |
41? |
75? |
32? |
69? |
27? |
168? |
70.5? |
44? |
22? |
9.7? |
4.5? |
| 65*32 |
94.5? |
50.5? |
75? |
40? |
69? |
34? |
168? |
64? |
44? |
26? |
9.7? |
5.2? |
| 65*40 |
94.5? |
63? |
75? |
50? |
69? |
44? |
168? |
70? |
44? |
31? |
9.7? |
6.5? |
| 65*50 |
94.5? |
79.5? |
75? |
63? |
69? |
55? |
168? |
79? |
44? |
38? |
9.7? |
8.2? |
| 80*20 |
114? |
42.5? |
90? |
25? |
87? |
20? |
197? |
68.5? |
50.5? |
18.5? |
12? |
8.7? |
| 80*25 |
114? |
42.5? |
90? |
32? |
87? |
27? |
197? |
68.5? |
50.5? |
22? |
12? |
5.2? |
| 80*32 |
114? |
52? |
90? |
40? |
87? |
34? |
197? |
73.5? |
50.5? |
26? |
12? |
5.8? |
| 80*40 |
114? |
63.5? |
90? |
50? |
87? |
44? |
197? |
78.5? |
50.5? |
31? |
12? |
6.7? |
| 80*50 |
114? |
80? |
90? |
63? |
87? |
55? |
197? |
83? |
50.5? |
38? |
12? |
8.4? |
| 80*65 |
114? |
95? |
90? |
75? |
87? |
69? |
197? |
92? |
50.5? |
44? |
12? |
10? |
| 100*25 |
134? |
41? |
110? |
32? |
106? |
27? |
237? |
77? |
61? |
22.5? |
12? |
4.4? |
| 100*32 |
134? |
50? |
110? |
40? |
106? |
34? |
237? |
85? |
61? |
26? |
12? |
5? |
| 100*40 |
134? |
63? |
110? |
50? |
106? |
44? |
237? |
89? |
61? |
31? |
12? |
6.5? |
| 100*50 |
134? |
79? |
110? |
63? |
106? |
55? |
237? |
89? |
61? |
37.5? |
12? |
8? |
| 100*65 |
134? |
94.5? |
110? |
75? |
106? |
69? |
237? |
100? |
61? |
44? |
12? |
9.7? |
| 100*80 |
134? |
113.5? |
110? |
90? |
106? |
87? |
237? |
107? |
61? |
51? |
12? |
11.7? |
| 125*50 |
163? |
113? |
140? |
63? |
135? |
55? |
297.5? |
132.5? |
77? |
37.5? |
11.5? |
8? |
| 125*80 |
163? |
113? |
140? |
90? |
135? |
87? |
297.5? |
132.5? |
77? |
50.5? |
11.5? |
11.5? |
| 125*100 |
163? |
134? |
140? |
110? |
135? |
106? |
297.5? |
138.5? |
77? |
60.5? |
11.5? |
12? |
| 公稱直徑DN |
D1 |
D2 |
d1 |
d2 |
d3 |
d4 |
L |
h |
Z1 |
Z2 |
e1 |
e2 |
| 150*50 |
185.5? |
79.5? |
160? |
63? |
156? |
55? |
337? |
117.5? |
85.5? |
38? |
12.7? |
8.2? |
| 150*65 |
185.5? |
95? |
160? |
75? |
156? |
69? |
337? |
128.5? |
85.5? |
44? |
12.7? |
10? |
| 150*80 |
185.5? |
113? |
160? |
90? |
156? |
87? |
337? |
132.5? |
85.5? |
51? |
12.7? |
11.5? |
| 150*100 |
185.5? |
134.5? |
160? |
110? |
156? |
106? |
337? |
142.5? |
85.5? |
60.5? |
12.7? |
12.2? |
| 150*125 |
185.5? |
162? |
160? |
140? |
156? |
135? |
337? |
159.5? |
85.5? |
77? |
12.7? |
11? |
| 200*50 |
261? |
75? |
225? |
63? |
219? |
59? |
420? |
157.5? |
119? |
38? |
18? |
6? |
| 200*65 |
261? |
89? |
225? |
75? |
219? |
71? |
420? |
163? |
119? |
44? |
18? |
7? |
| 200*80 |
261? |
106? |
225? |
90? |
219? |
86? |
420? |
171? |
119? |
51? |
18? |
8? |
| 200*100 |
261? |
129? |
225? |
110? |
219? |
105? |
420? |
181? |
119? |
61? |
18? |
9.5? |
| 250*125 |
308? |
161? |
280? |
140? |
270? |
130? |
538? |
225? |
146? |
76? |
14? |
10.5? |
| 250*150 |
308? |
184? |
280? |
160? |
270? |
150? |
538? |
235? |
146? |
86? |
14? |
12? |
| 250*200 |
308? |
248? |
280? |
225? |
270? |
219? |
538? |
268? |
146? |
119? |
14? |
11.5? |
| 300*200 |
346? |
249? |
315? |
225? |
310? |
219? |
662? |
281? |
163.5? |
113.5? |
15.5? |
12? |
| 350*150 |
390? |
184? |
355? |
160? |
340? |
154? |
749? |
276.5? |
184? |
86? |
17.5? |
12? |
| 350*200 |
390? |
249? |
355? |
225? |
340? |
219? |
749? |
309? |
184? |
118.5? |
17.5? |
12? |
| 450*300 |
494? |
346? |
450? |
315? |
430? |
304? |
944? |
448? |
231? |
164? |
22? |
15.5? |